0021
Easyjet
Neubau Wohnhaus
offener Projektwettbewerb, 2. Wertungsrundgang
Bern, 2025
Im Verlauf der letzten fünf Jahre hat sich die Situation für erschwinglichen Wohnraum zugespitzt. Im Zuge der steigenden Nachfrage wurde das Angebot stetig exklusiver und vor allem teurer. Es führt, vor allem in den Städten oder stadtnahen Gemeinden, zu einer untragbaren Situation.
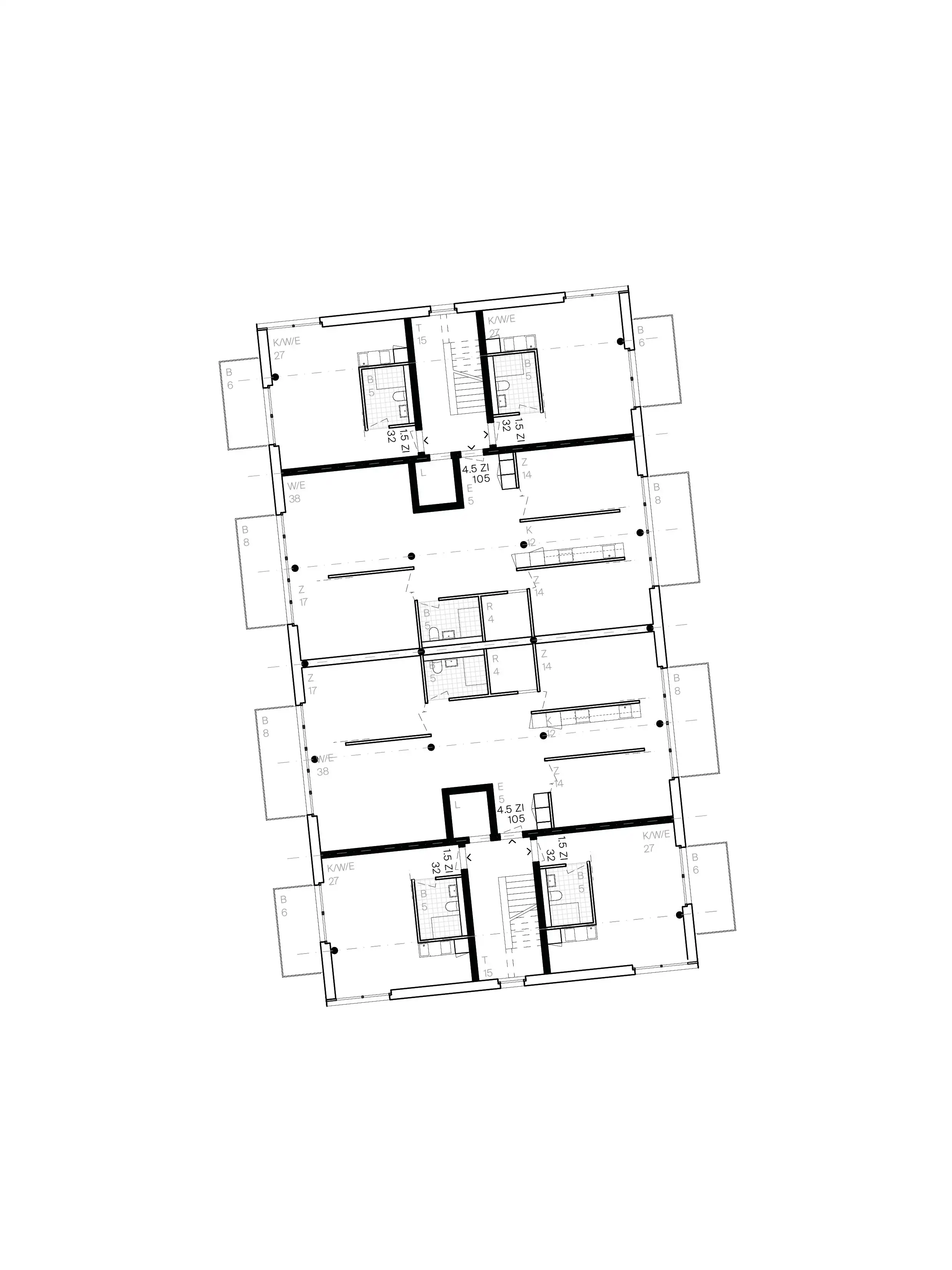
Das Projekt «easyJet» versteht sich als Gegenbewegung. Radikal versucht es günstigen Wohnraum möglichst vielen Bewohner:innen zugänglich zu machen. Um dieses Ziel zu erreichen, reizt es einerseits die gültigen Bau- und Zonenreglemente vollends aus und hinterfragt andererseits den gegenwärtigen Statusquo einer «bezugsbereiten» Wohnung.
Diese wird in diesem Projekt als flexible Bühne verstanden, auf welcher sich die Mieter:innen durch «Hands-on–Partizipation» selbst einrichten können. In den unteren zwei Geschossen befinden sich nur mit notwendigster Infrastruktur ausgestattete, doppelgeschossige Wohnhallen. Sie können im Selbstbauprinzip zu einer 3.5-4.5 Zimmerwohnung ausgebaut werden. In den oberen Geschossen bietet eine sehr flexible und mehrdeutige Grundrissfigur unterschiedlichsten Lebensformen Platz.
Wohnen ist eine Tätigkeit, die die Anwohner:innen eines Ortes in vielschichtige–gemeinschaftliche Relationen setzt. Durch das sich am Ort/in der Wohnung Einrichten entsteht zudem eine nachhaltige und dauerhafte Beziehung zum Ort.
Im Zielkonflikt zwischen Ökonomie und Ökologie entsteht eine neue Grosszügigkeit, die Raum für Aneignung, Partizipation und Nachbarschaft bietet.
In Zusammenarbeit mit Studio Gashi.













