0003
Hut
Ersatzneubau Wohnhaus
Langenthal, 2020 – 2022
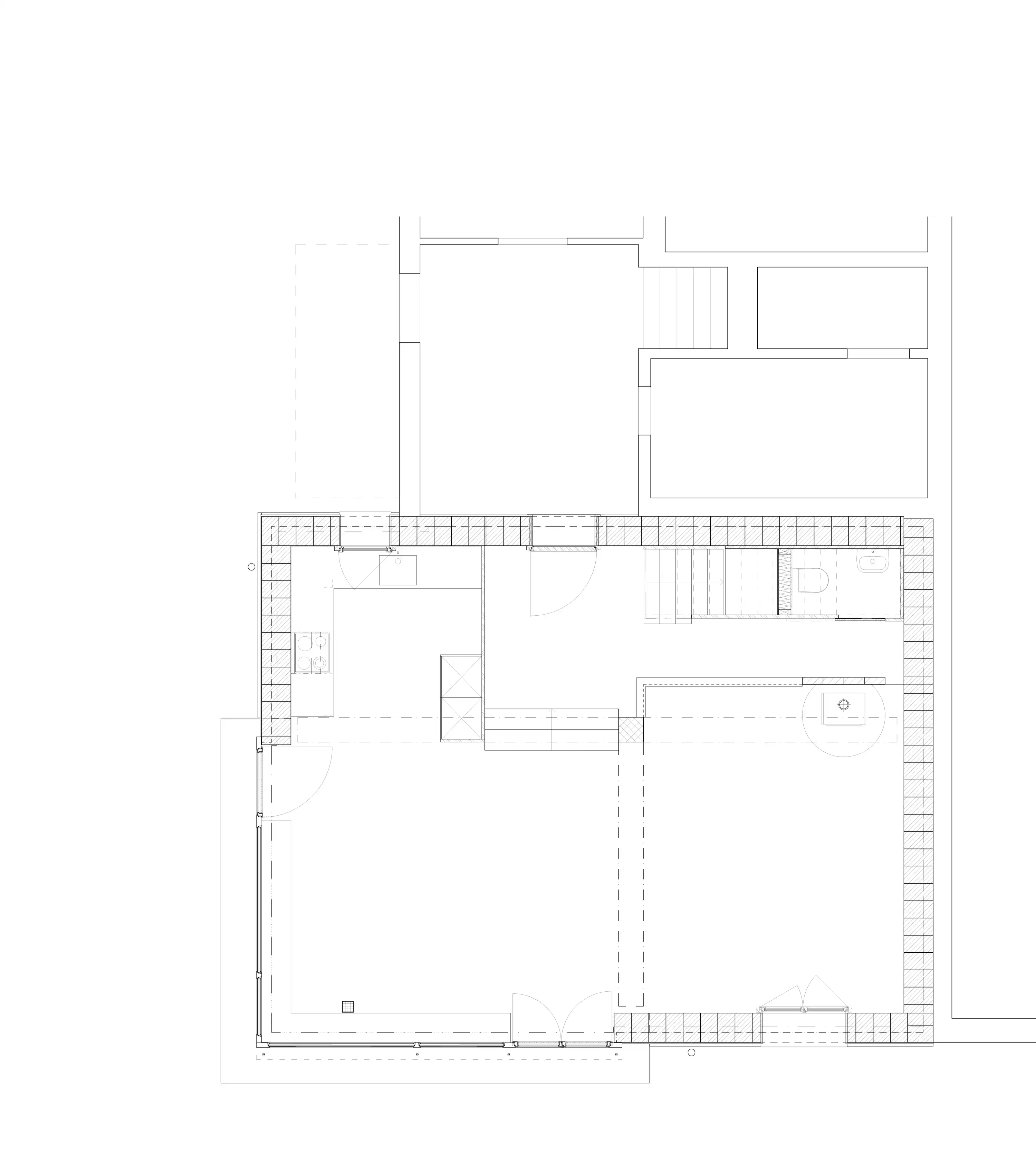
Der Ersatzneubau in Langenthal ist zweiseitig in seine unmittelbare Nachbarschaft eingebaut. Im Erdgeschoss verbinden sich unterschiedliche architektonische Elemente zu situativen Raumfiguren – eine Collage, die durch die Bewohner:innen erweitert werden soll.
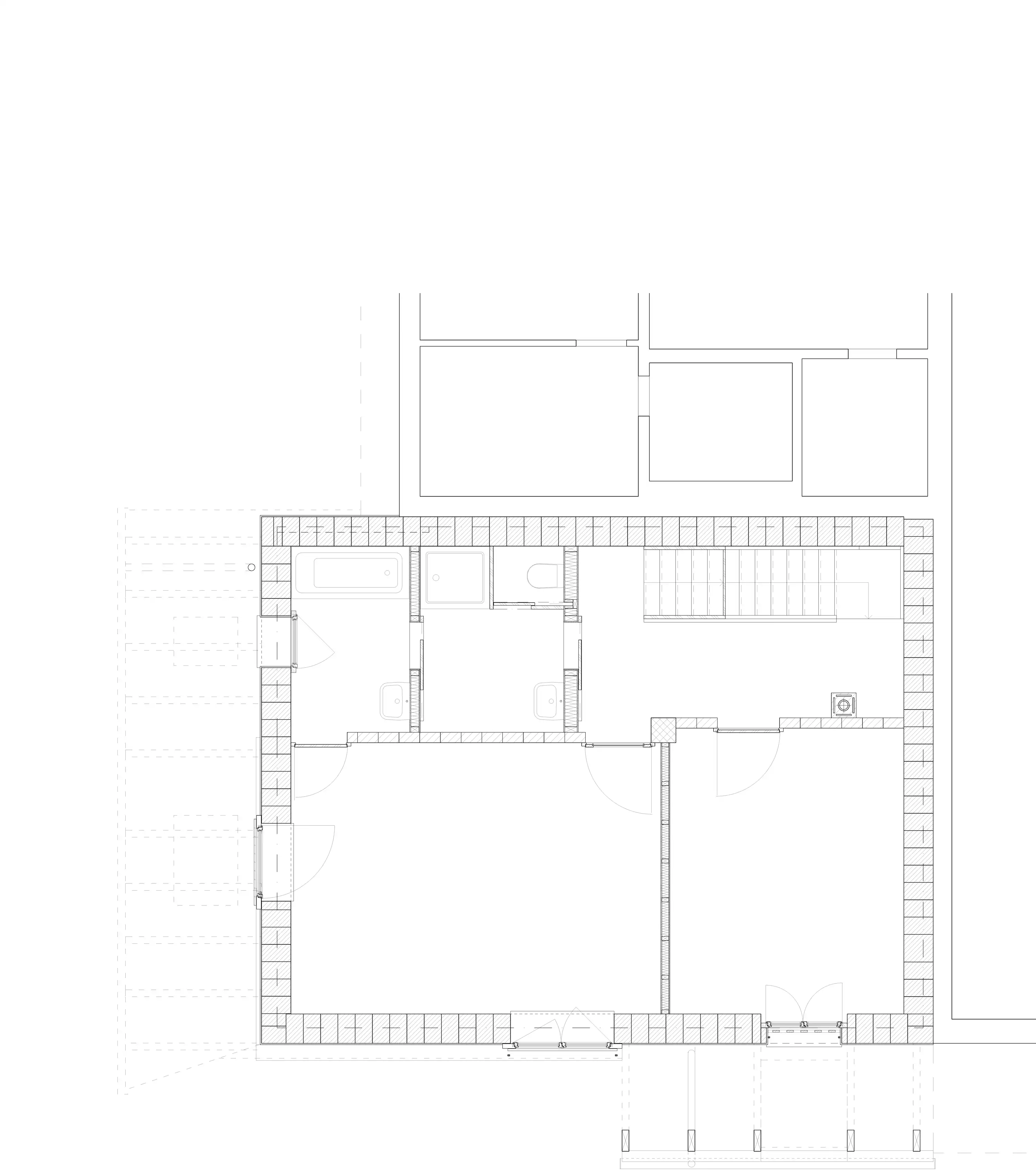
Über ein grosszügiges Eckfenster wird der Wohnraum mit dem Garten verwoben. Das aufgesetzte Fenster ist als minimale Loggia ausformuliert. Sie schenkt dem Haus einen Massstab, der mit der vernakulären Nachbarschaft bricht. Ein hölzerner Treppenturm schiebt sich der eingebauten Gebäudeecke entlang, vertikal durchs Haus. Ab dem Obergeschoss wechselt die Raumordnung – es entstehen Umläufe und Enfiladen.
Der Entwurf für das kleine Wohnhaus ersetzt den Anspruch auf puristische Gleichheit durch Entwurfsprinzipien die aus alltäglichen, vitalen und heiteren Lebensgefühlen schöpfen. So trägt das Haus auch keine Krone, sondern einen schnittigen Hut.




















